• geplaaste dakkapel

2011 – Veeringstraat 11, Zaandam,

Dakkapel bij een particuliere woning.

-Ontwerp
-Leveren van bestek- en werktekeningen,
-Aanvraag omgevingsvergunning.

  • foto gevel van gebouw2

2010 – Project Gevelsanering

de Clerqstraat en omgeving, 279 woningen
Lairessestraat en omgeving, 272 woningen
Nassaukade en omgeving, 168 woningen

- Levering van de voorlopige beeldadviezen. Betreffende de detaillering, roeden, kleur, ventilatie en overige bijzonderheden, in het kader van maatregelen gevelsanering verkeerslawaai.
- Levering van gevelbeelden en werkomschrijvingen van geluidwerende maatregelen. Betreft opname bestaande situatie, opstelling nieuwe situatie, Ra-waarde berekening, kosten berekening, in het kader van maatregelen gevelsanering verkeerslawaai. In opdracht van Dienst Wonen, Zorg en Samenleven gemeente Amsterdam

  • locatie foto1
  • locatie foto2
  • locatie foto3

2010 - Oostzijde 115, Zaandam,

Splitsing/ transformatie particuliere woning in 4 studio´s

-Advies en ontwerp
-Leveren van bestek- en werktekeningen
-Aanvraag omgevingsvergunning

  • 1 haarlemmermeerstraat en amstelveenseweg
  • 2 haarlemmermeerstraat en amstelveenseweg
  • 3 haarlemmermeerstraat en amstelveenseweg

2009 – Project Gevelsanering

-Haarlemmermeerstraat en omgeving, 374 woningen
-Amstelveenseweg en omgeving, 267 woningen

-Levering van gevelbeelden en werkomschrijvingen van geluidwerende maatregelen. Betreft opname bestaande situatie, opstelling nieuwe situatie, Ra-waarde berekening, kosten berekening, in het kader van maatregelen gevelsanering verkeerslawaai. In opdracht van Dienst Wonen, Zorg en Samenleven gemeente Amsterdam

  • foto van de straat
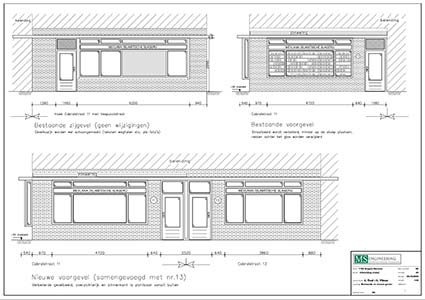
  • gevel tekening

2009 – Cabralstraat 11 -13, Amsterdam

Samenvoeging van twee bedrijfsruimten

-Ontwerp, bouwadvies en begeleiding.