• plattegrond toen
  • plattegrond nieuw

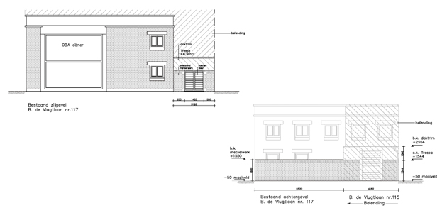
2009 – Oba Döner - Amsterdam

Uitbreiding van restaurant aan de Vlugtlaan in Amsterdam

-Ontwerp
-Leveren van bestektekeningen
-Advies en aanvraag omgevingsvergunning .

  • foto van de omgeving
  • foto van de omgeving
  • foto van de omgeving

2008 – Project Gevelsanering

Omgeving Amstel, 202 woningen
Archimedesweg, 85 woningen

- Levering van gevelbeelden en werkomschrijvingen van geluidwerende maatregelen Betreft opname bestaande situatie, opstelling nieuwe situatie, Ra-waarde berekening, kosten berekening, in het kader van maatregelen gevelsanering verkeerslawaai. In opdracht van Dienst Wonen, Zorg en Samenleven gemeente Amsterdam.

  • verbouwing 1
  • verbouwing 2
  • nieuwe situatie

2006 – Restaurant Birtat

Uitbouw restaurant aan de Bos en Lommerweg in Amsterdam

-Ontwerp
-Leveren van bestek- en werktekeningen
-Advies en begeleiding bij bouwvergunning

Bezoek Website